Hi, I’m Edward Daniels,
an enthusiastic architect.
This is my porfolio of work thus far in my career, be sure to check back regularly.
PROFESSIONAL WORK


Residential Farm Development
Private client lead project to refurbish the main farmhouse and build 2 new dwellings on the site. I worked on the project from concept, sketch schemes through to building regulations approval. All drawings and images by myself.

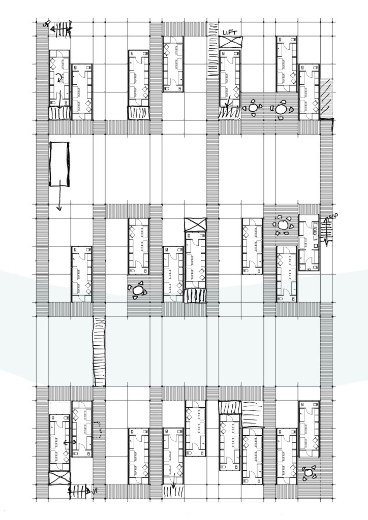
These images shows the concept development drawn by hand


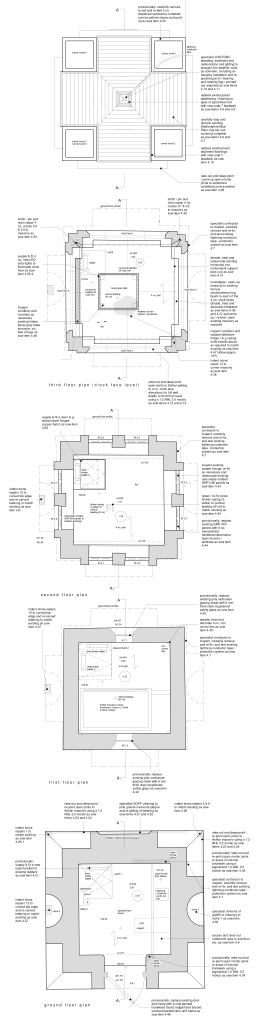
Park Restoration Projects
This was a council project to restore 4 key areas of a local park. My area of work was the restoration drawing for the Thomas Peake Memorial Gates and the Adams Memorial Clock Tower.
All drawings produced in Revit / AutoCAD under the supervision of an Architect Director.


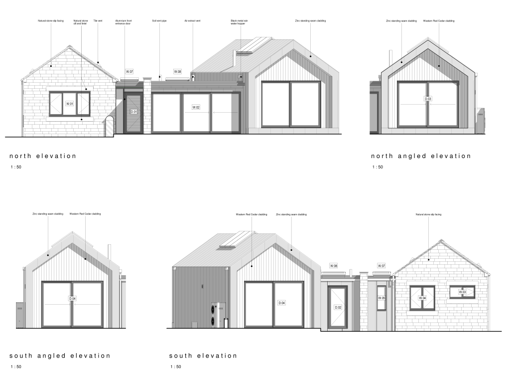
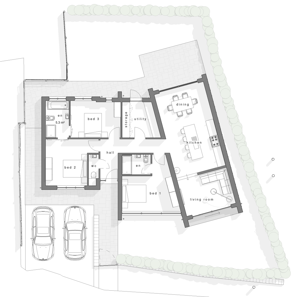
Fairview Residential Development
This project was to develop a new three bedroom bungalow on a very compact site. My role was from concept through to building regulations submission and observing construction on site.









ACADEMIC
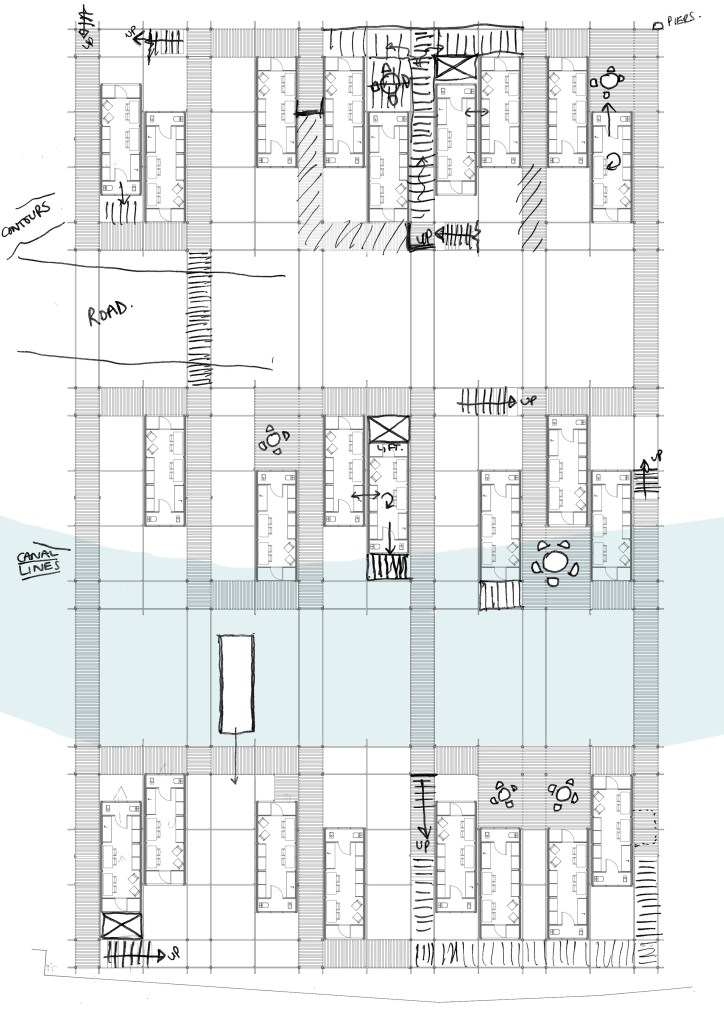
Burslem Creative Framework
Part 2 project to develop a framework to allow creatives to inhabit and develop their work as a collective community, whilst allowing flexibility of spaces and location across the city.









Guild of Master Crafts
Part 1 final year project to develop a guild of master crafts in Sheffield to provide a building for crafts-people to gather and enable their work.
Important to this project is the adjacent typology and materiality and the key spaces defined in my brief.

Iterative massing studies (below) to show how the site can be maximused and fit with its surrounding context.
A heliodon was used to experiment with sunlight and used to maximise the daylight into the main spaces.






Scarborough Exhibition Centre
Part 1 final year project to develop a Photographic Exhibition Centre on a steep slope in Scarborough

Initial concepts mapped out the spaces divided into public and private. Working with Lego I mapped out the hierarchy of spaces. Both light and views had to be carefully controlled and circulation was of imporance within the gallery.












